螺紋鎖緊環換熱器結構組成及密封原理,你真的懂了嗎?
螺紋鎖緊環換熱器是能在高溫高壓工況下進行熱交換的換熱設備。具有結構緊湊,密封可靠等優點,在煉油加氫裂化、加氫脫硫裝置中得到廣泛應用。但在生產過程中由于力的傳遞作用及動態平衡困難,極易產生累積誤差造成隔板壓碎或者無法密封等事故。但是由于其內部構件復雜,配合精密,檢修過程需使用專用工具,人機配合作業難度較大。
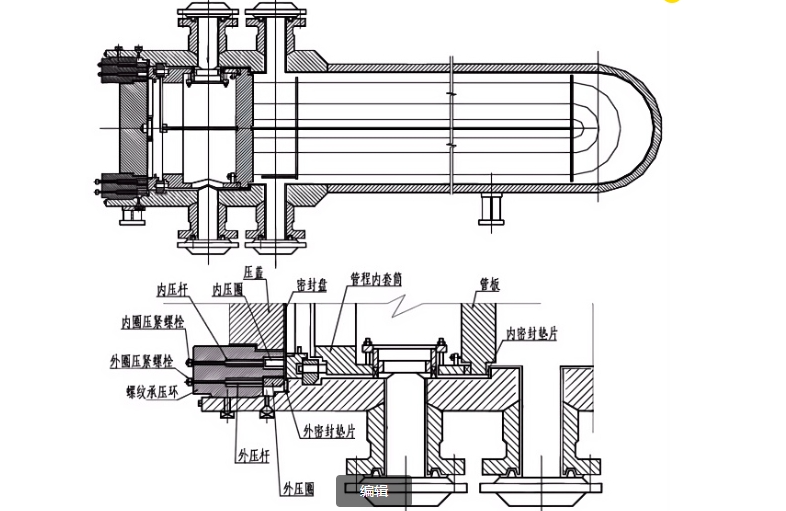
結構組成及密封原理
高壓換熱器的組成有哪些?

高壓換熱器密封原理是什么?
(1)殼程的密封過程∶緊固內圈壓緊螺栓-內壓桿-內壓圈-隔板墊環-頂壓螺栓-對開鍵環-管箱內筒-盤根壓環-盤根-盤根壓環-殼程。
(2)管程的密封過程∶緊固外圈壓緊螺栓-外壓桿-外壓圈-隔板-外密封熱圈-管程。
高壓換熱器檢修的重點和注意事項有哪些?
1. 螺紋鎖緊環螺栓拆:待螺紋鎖緊環內外圈螺栓溫度降到200℃左右時迅速完成澆柴油過程避免螺栓熱粘接。每拆卸一個螺栓即抹上高溫抗咬合劑再立即旋入螺紋孔中,防止此時設備內部壓力太大溢出介質傷人。吊裝螺紋鎖緊環要垂直放好,注意壓力環和推桿不能脫落。把連接鎖緊環和器械的螺栓擰出,并拆下裝配工具。
2.拆卸對開鍵環:把對開鍵環從底部開始逆時針作好順序標記。用力矩扳手從底推進螺絲。換熱器對開鍵環其中有三塊是帶有斜面的,傾斜角度先取出帶斜面的對開鍵環,然后依次傾斜角度取出各對開鍵環,按位號及標記順序放好。
3.拆卸壓力套筒及管束:吊車吊裝螺紋保護套筒固定在管槽蓋頂部螺栓上,安裝到管槽中對鎖緊環大螺紋實施保護,用螺栓連接好壓力套筒和管束。確保壓力套筒和管束與專用工具的連接牢靠。用1臺吊車小鉤吊住拆卸壓力套筒與管束整體的專用工具,用配重找好平衡。緩慢拉出壓力套筒與管束的整體,要注意壓力套筒與換熱器殼體的軸向間隙,調整配重位置時刻保持抽管束時的整體平衡,防止偏斜強力抽芯。

主要技術施工步驟
螺紋鎖緊環內外圈螺栓澆柴油→螺紋鎖緊環→定位隔板→隔板墊環→對開鍵環→分隔箱蓋壓力→套筒及管束清洗檢查修復過→回裝管束及壓力套筒→調整對開鍵環→壓力套筒填料壓蓋換熱器殼程→試壓→分隔箱蓋→隔板墊環→定位隔板→螺紋鎖緊環換熱器管程試壓。